
涂裝車間調溫除濕機 調溫除濕機原理
調溫除濕機用蒸發器來給空氣降溫除濕,并回收系統的冷凝熱,彌補空氣中因為冷卻除濕時散失的熱量,是一種高效節能的除濕方式,已經廣泛應用于國防工程、人防工程、煙草及石化行業、地鐵車站、航天領域凈化工程、實驗室、電訊器材室、檔案室、食品房、制藥或膠片車間、特種玻璃制造、糧食、木材等的除濕干燥和高濕空間的除濕與溫度控制等有除濕要求的場所。
工作原理
本機具有降溫、升溫、除濕、通風等功能,用戶設定好參數機組自行檢測環境溫濕度,自動控制恒溫恒濕模式運行。用戶可根據當前溫濕度,或季節變化需要選任一種功能。
機組原理:
室內濕空氣通過機組蒸發器表面時,因蒸發器溫度低于濕空氣的露點溫度,空氣中的水蒸汽便冷凝析出,聚積于接水盤內,由水管排出,空氣的含濕量下降。從而達到干燥環境空氣,調節室內空氣溫度的目的
能耗及溫濕度控
溫度控制:溫度由微電腦控制器控制制冷系統控制調節;當環境溫度大于設定溫度加帶寬時,壓縮機開始工作降溫,降到設定值時壓縮機停止運行,風機繼續運行循環;當環境溫度小于設定溫度時加帶寬,壓縮機開始升溫,當升到設定值時壓縮機停止工作,風機繼續運行循環;
濕度控制:濕度由微電腦控制器控制制冷系統調節。當環境濕度大于設定濕度加帶寬時,壓縮機開始工作除溫,當降到設定值時壓縮機停止工作,風機繼續運行循環;
注:控制系統中溫度及濕度控制,溫度控制優先,經過不斷的調節,達到所需的溫濕度;
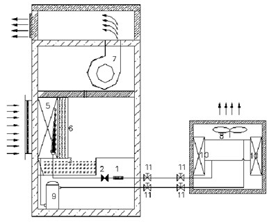
流程圖
![6f363e6132[1] 6f363e6132[1]](http://m.hunlidiy.cn/uploadfile/ueditor/image/202112/163834906949aa94.jpg)
1、過濾器 2、膨脹閥 3、接水盤 4、分液頭 5、蒸發器 6、冷凝器 7、送風機
8、散熱風機 9、壓縮機 10、風冷冷凝器 11、連接閥
調溫除濕機選用的主要零部件,如制冷壓縮機、過濾器等,均采用原裝進口名牌產品。機組設有多種自動保護功能。因此 ,與其他同類產品相比,具有效率高、結構緊湊輕便、運轉平穩、操作簡便、外型美觀、使用壽命長等特點。
1、防腐處理
本機組采用高強度鋼材做為框架、外形新穎、機構簡單合理,安裝方便,機組外殼表面做噴塑防腐處理,內部如接水盤等采用防腐型材料,門板內側、銅管等零部件也覆蓋有耐腐蝕性的保溫層,有效的增加了產品的使用壽命。
2、防塵處理
機組進風口采用初效過濾,有效的避免了生產、使用過程中產生的細小灰塵進入機組,阻塞蒸發器縫隙,而導致除濕效果差、故障頻繁等問題。
3、防火處理
機組整機防火設計,電線、電氣配件等均采用高品質材料,防止機組內部電線、配件老化而引起的起火。另外,機組所有控制電器元件均采集中在配電箱內,采用弱電微電腦控制器,徹底杜絕了因控制電器故障引起的起火。
4、控制簡便
機組操控采用PLC編程,全中文顯示,簡單易懂、無需操作培訓、只需設置好參數,一鍵開機。可根據用戶設定的溫度及相對濕度自動啟停、精度高、可靠性好、外形美觀。
5、節能高效
機組采用風量大噪音低的離心式風機,前進風或后進風上出風設計,使處理空間內更好空氣流通更順暢,除濕效果更佳。
6、多用功能
本機具有除濕、降溫、升溫、通風等功能,在濕度比較大的時候,采用除濕功能,在濕度較小的時候采用通風功能。這樣既能滿足濕度的要求,又能達到節能的效果
7、進口配件
壓縮機和主要配件均采用國際著名品牌的產品,通過制冷系統科學合理的優化設計,確保在不同壞境下正常運行。克服了國內同行業機型除濕量不足、機組頻繁啟動產品故障率高的缺點。同時也提高了產品的使用壽命。
8、安全保護
機組配備防爆電控箱,防爆風機,室外機不做防爆處理,控制器具有溫濕度顯示、故障顯示等功能。設有過載、短路、缺相、過熱、高壓、低壓等保護,及風機、防火閥連鎖保護。
調溫除濕機是提供一種可以在不同室內、外溫度下對室內進行供熱、制冷和除濕以滿足室內溫濕度要求的調溫調濕方法及其設備,可以提高除濕調溫系統的性能,擴大除濕調溫系統的適用范圍。
調溫除濕機采用制冷原理,使空氣中的水蒸汽通過蒸發器表面時冷凝析出,降低空氣的含濕量,以達到干燥環境空氣的目的。廣泛適用于對溫濕度要求比較高的地下商場,國防工程、車間、倉庫、電訊器材庫、檔案室、文物標本室、洞庫等場所。
1、涂裝專用除濕機有機的結合了冷凍除濕與轉輪除濕兩種除濕方式,是設計先進、運行經濟的四季智能型空氣處理設備。其中冷凍除濕是利用壓縮機制冷,將空氣溫度降到露點以下,排出冷凝水,使空氣濕度降低。
2、由于水份脫附再生可利用壓縮機冷凝余熱回收,又會使轉輪發熱,因此經過轉輪除濕后的空氣溫度會上升,使送入涂裝空間的空氣相對濕度較低。
3、在涂裝生產工藝中主要以噴砂噴漆為主,而在這些工藝中有效解決金屬表面氧化問題,最經濟的方法是用涂裝專用除濕機控制涂裝環境的空氣相對濕度,從而延長封閉空間內金屬表面(鋼表面)的氧化進程。
4、涂裝專用除濕機能降低鋼材表面露點溫度,解決大型鋼結構件表面氧化問題,同時防止人員汗水對鋼板的重新銹蝕,加快溶劑揮發,保證涂膜及時干燥。

<
<
<
<
<
<
<
<
